Located on .55 acres in quiet location in Clearwater, BC. This 1415 square foot rancher home has lots of potential, move-in ready. The lot is private and features an outbuilding with shop. 3 bedrooms and 1 bathroom. The main living space has a great open feel with large living room and kitchen/dining area. Attached 2 car garage. There is a nice private covered patio off the living room. Yard is fenced and provides lots of privacy from the road. Electrical has been inspected and is all up to date. This is a court ordered sale and schedule A applies to all offers. (id:62809)
| MLS® Number | 10371243 |
| Property Type | Single Family |
| Neigbourhood | Clearwater |
| Parking Space Total | 2 |
| Bathroom Total | 1 |
| Bedrooms Total | 3 |
| Architectural Style | Ranch |
| Constructed Date | 1971 |
| Construction Style Attachment | Detached |
| Heating Fuel | Electric, Wood |
| Heating Type | Stove |
| Stories Total | 1 |
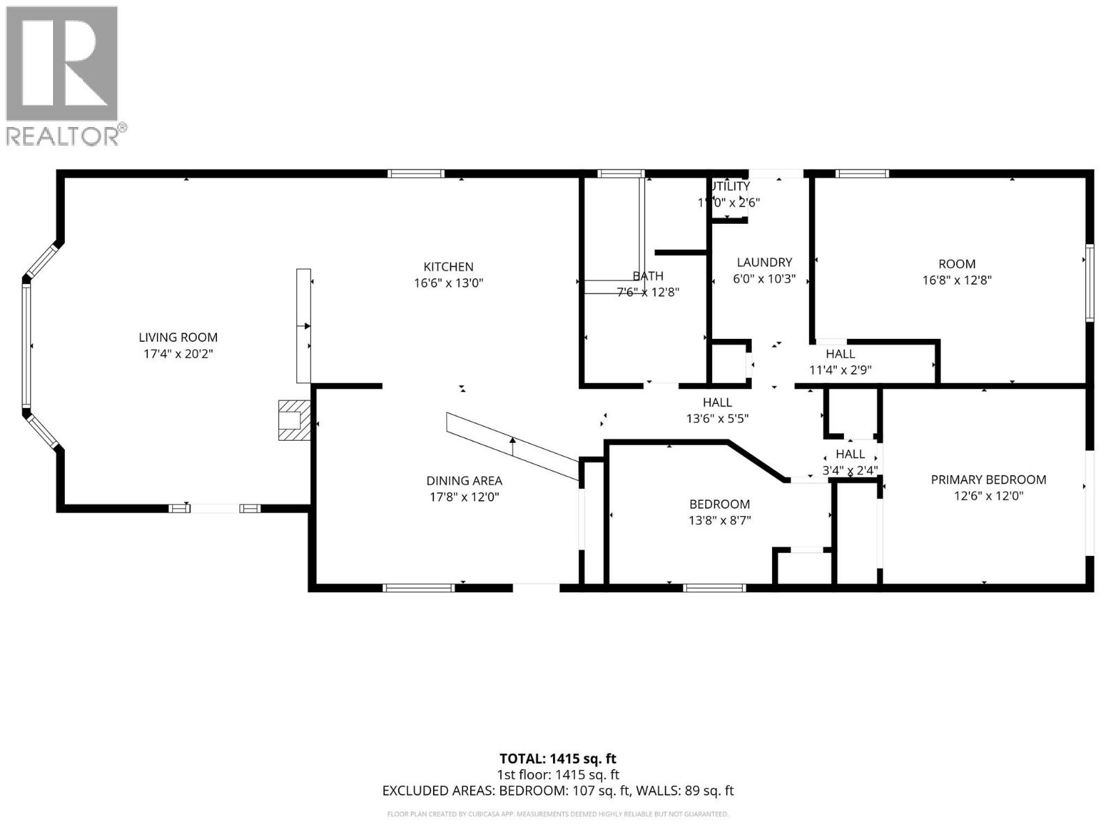
| Size Interior | 1,415 Ft2 |
| Type | House |
| Utility Water | Municipal Water |
| Attached Garage | 2 |
| R V |
| Acreage | No |
| Size Irregular | 0.55 |
| Size Total | 0.55 Ac|under 1 Acre |
| Size Total Text | 0.55 Ac|under 1 Acre |
| Level | Type | Length | Width | Dimensions |
|---|---|---|---|---|
| Main Level | Bedroom | 13'8'' x 8'7'' | ||
| Main Level | Dining Room | 17'8'' x 12'0'' | ||
| Main Level | Laundry Room | 6'0'' x 10'3'' | ||
| Main Level | Bedroom | 12'8'' x 16'8'' | ||
| Main Level | Primary Bedroom | 12'6'' x 12'0'' | ||
| Main Level | 4pc Bathroom | Measurements not available | ||
| Main Level | Living Room | 17'4'' x 20'2'' | ||
| Main Level | Kitchen | 16'6'' x 13'0'' |
https://www.realtor.ca/real-estate/29192525/1029-raft-river-road-clearwater-clearwater
Contact us for more information
Terry Lynds
Personal Real Estate Corporation
(833) 817-6506
www.exprealty.ca/